FHD - GmbH Waiblingen 
Fuchs Hebetechnik & Dienstleistungen  info@fhd-gmbh.de   0 71 51 / 56 55 87,   0151 125 349 20    

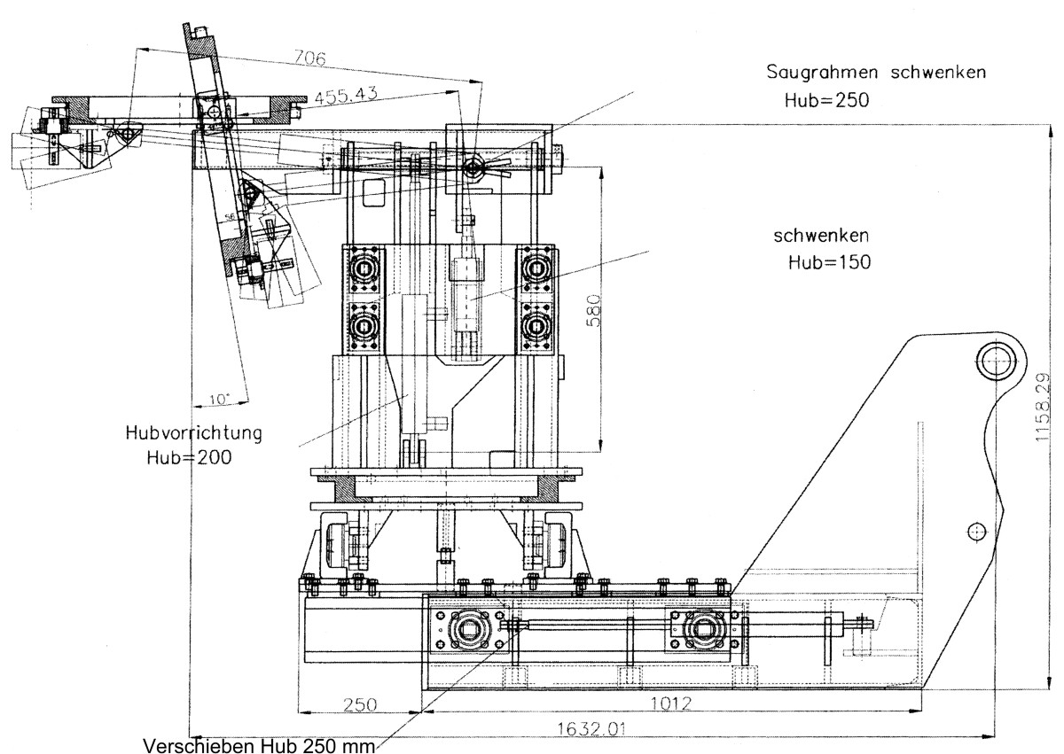
Glasmanipulator Tragfähigkeit 2.000 kg

zum Einsatz mittels Manitou, Teleskopstapler oder Stapler

Vakuum Sauganlage STGA4 - 24 V

Drehen elektrisch, 7 Achsen Schwenken und Fahren hydraulisch

Gerätekonfiguration - Abmessungen - Technische Daten

 

 





 

 

Tragfähigkeit

2.000 kg mit 10 Saugtellern

Maße Grundgerät:

1.380 mm - Rahmenhöhe
2.000 mm - Rahmenbreite
350 mm Rahmentiefe

Eigengewicht:

ca. 1.000 kg Gesamtgewicht

Drehen:

elektrisch 360°

Kippen / Schwenken / Fahren

hydraulisch,  mittels 7 Hydraulikzylinder

Bedieneinheit:

Funkfernbedienung Saugen, Lösen, Drehen, und alle weiteren Bedienvorgänge.

Aufhängung:

Anschluss an Manitou oder mittels Staplertaschen an Stapler

Maximale Größe derScheibe
mit Verbreiterung:

Höhe max.

Breite max.

Temperaturbereiche:

Betriebstemperatur:  1° C bis + 40° C
Lagertemperatur:      Raumtemperatur nicht unter 0° C

Spannungsversorgung:

Akkubetrieb 24 Volt, 2 integrierte Ladegeräte 230 Volt, integrierte Spannungsanzeige zur Akkuüberwachung

Vakuumsystem:

4 unabhängige Vakuumkreise mit 4 Vakuumpumpen und je 1,8 Liter Vakuumvorratsbehälter

 Hier können Sie weitere Informationen zum Gerät herunterladen:

 

 

 

 

 

 


 

 
 
 
E-Mail
Anruf